{{preheader}}

אם אינכם מצליחים לצפות במסר לחצו כאן

 

 רוצים להרוויח הרבה יותר

מיחידת דיור?

 

 

 

כשמשפחת ש' הגיעה אליי,

המטרה שלהם היתה להגדיל את הדירה,

ולכסות את עלויות הבניה,

מהשכרת יחידות.

 

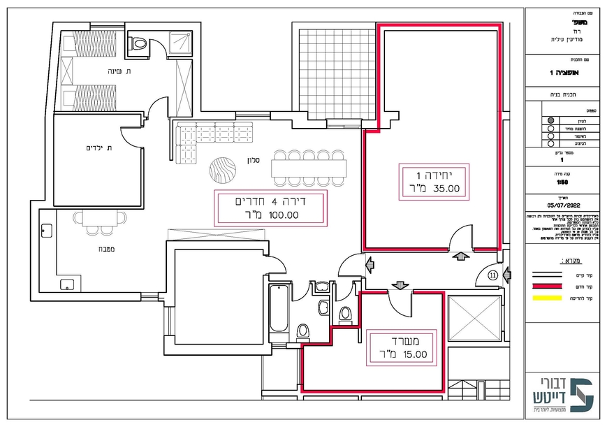
הם גרו בדירת 80 מ"ר,

והיתה להם אופציה להרחבה של 70 מ"ר.

איך לוקחים כזה שטח,

ומצליחים להכניס בו את כל מה שרצינו?

 

 המחשבה שלהם היתה:

לחלק לשתי יחידות,

אחת למגורי זו"צ ואחת למשרד,

הם קיבלו סקיצה ראשונית לחלוקת הדירות:

 

 

 במחשבה שניה בדקנו שוב:

האם יש אופציה להרוויח יותר?

 

 

להרוויח יותר?

פה היתה המשימה שלי..

לתת להם תכנית עם פתרונות

לניצול מקסימלי של שטחים שעלולים להתבזבז!

 

הבנו שאם נחלק את השטח לשתי יחידות,

היחידות תהיינה קטנות,

ויהיה קשה להשכיר אותן.

 

לעומת יחידה גדולה,

שתהווה כמעט דירה של ממש,

ותושכר במחיר מלא!

 

הם החליטו לבחור את האופציה,

של יחידה אחת גדולה וריווחית.

  עכשיו המטרה להפיק גם מהדירה

את כל התועלת האפשרית!

 

יש לנו דירה עם שלושה חדרי שינה

סלון ומטבח, ושטח מדויק מדי

שאסור לבזבז אותו על מסדרונות ומעברים.

חייבים לנצל כל מטר!

 

לכן הענקנו לסלון ולמטבח שטחים מכובדים,

שנותנים תחושת מרווח של דירה גדולה.

וזה מה שיצא:

דירה גדולה ומרווחת!

(א"א להאמין שהיא פחות מ 100 מ"ר!)

 

 

על הדרך צצו כל מיני בעיות תכנוניות,

שהתמודדנו איתם יופי!

לדוגמא:

שירותי האורחים?

השטח שנשאר בשבילו ארוך מדי! (לא חבל?)

 

  

וכאן נדרשה הברקה של ממש:

הקצנו לשירותים את השטח הראוי להם,

ואת האורך חתכנו,

וקיבלנו נישה לכיוון המטבח.

 

הנישה תשמש למקפיא,

ותהיה מונמכת,

כך שיש אפילו חלון לשירותים!

 

בשביל הנוחות - הוספנו יציאה למרפסת,

גם מהסלון וגם מהמטבח...

 

עכשיו יש לכל דבר מקום,

וגם היחידה רחבה ומזמינה,

ולא פלא שהיא נחטפה,

והושכרה עוד לפני גמר הבניה!

 

גם לכם יש שטח

שאתם רוצים להרוויח עליו יותר?

מוזמנים לפנות עוד היום,

 

 או להשאיר את הפרטים שלכם כאן

או לפנות במייל לחצו כאן>>>

ולקבל הצעה מותאמת ומשתלמת!

 

 

רוצים גם ?

לקבלת הטבה מיוחדת לחצו כאן!!!

 

 

להצטרפות לרשימת התפוצה

<<< לחצו כאן >>>